E-mail:
senmao.machine@gmail.com
Hotline:
+86-15851956577
Location: Home > Products > Granulation equipment
  • Spray drying granulator
  • Spray drying granulator
  • Spray drying granulator

PGL series spray drying granulator

Category: Granulation equipment

Introduction: Product OverviewThis unit is a device that can simultaneously complete drying and granulation. According to the process requirements, the pressure, flow rate, and nozzle size of the material liquid pump can be adjusted to obtain the required spherical…

Contact


Product Overview

This unit is a device that can simultaneously complete drying and granulation. According to the process requirements, the pressure, flow rate, and nozzle size of the material liquid pump can be adjusted to obtain the required spherical particles in a certain proportion of size.
The working process of this unit involves high-pressure input of the material and liquid through a diaphragm pump, spraying mist like droplets, and then descending in parallel with the hot air. Most of the powder particles are collected by the discharge port at the bottom of the tower, and the exhaust gas and its small powder are separated by a cyclone separator. The exhaust gas is discharged by an exhaust fan, and the powder is collected by a pollination cylinder located at the bottom of the cyclone separator. The fan outlet can also be equipped with a secondary dust removal device, with a recovery rate of over 96-98%.
The tower body, pipeline, and separator materials in contact with the materials of this unit are all made of SUS304. There is a sufficient moisture layer between the inside of the tower and the shell, filled with ultra-fine glass wool. The tower is equipped with observation doors, mirrors, light sources, and control instruments, which are controlled and displayed by the electrical control console.

Product Application

Pharmaceutical industry: tablets, granules, capsules and granules; Low sugar, sugar free traditional Chinese patent medicines and simple preparations granules; Food: cocoa, coffee, milk powder, granular juice, seasonings, etc; Other industries: pesticides, feed, fertilizers, pigments, dyes, etc.

Product Features

1. The drying speed is fast, and the surface area of the material liquid greatly increases after atomization. In the hot air flow, 95% -98% of the water can be instantly evaporated, and the completion time of drying only takes tens of seconds to tens of seconds. It is particularly suitable for drying heat-sensitive materials.
2. All products are spherical particles with uniform particle size, good fluidity, good solubility, high purity, and good quality.
3. Widely used, according to the characteristics of the material, it can be dried with hot air or granulated with cold air, which has strong adaptability to the material.
4. Simple and stable operation, convenient control, and easy to achieve automated operations.

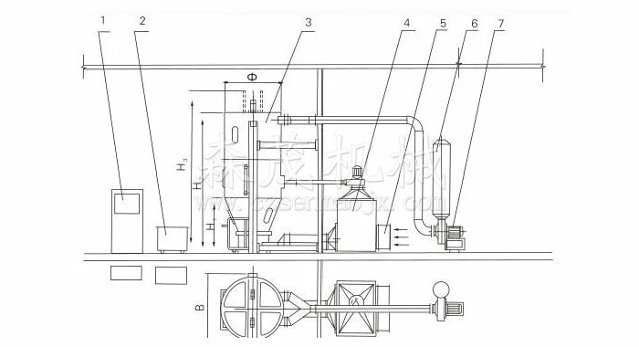
Structural diagram


喷雾干燥制粒机结构示意图

1. Control cabinet 2, infusion trolley 3, host 4, heat exchange cabinet 5, sub high-efficiency filter 6, muffler 7, induced draft fan

Technical Parameter

project Unit/Model PGL-3B PGL-5B PGL-10B PGL-20B PGL-30B PGL-80B PGL-120B
liquid extract min kg/h 2 4 5 10 20 60 100
max kg/h 4 6 15 30 40 100 140
Boiling ability min kg/批 2 6 10 30 60 100 150
max kg/批 6 15 30 80 160 250 450
Liquid specific gravity kg/L ≤1.30
Quantity of raw material containers L 26 50 220 420 620 980 1600
Container diameter mm 400 550 770 1000 1200 1400 1600
Induced draft fan power kw 3.0 5.5 7.5 11 15 18.5 30
Auxiliary fan power kw 0.35 0.75 0.75 1.20 2.20 2.20 4
steam Consumption kg/h 40 70 99 210 300 366 465
pressure Mpa 0.40-0.60
Electric heating power kw 9 15 21 25.5 51.5 60 75
compressed air Consumption m3/min 0.5 0.8 0.8 0.9 1.1 1.3 1.8
pressure Mpa 0.40-0.60
Operating temperature °C Room temperature -160 ° C automatic adjustment
Product moisture % ≥0.2
Material yield % ≥99
Equipment noise dB <77
Host size Φ mm 400 550 770 1000 1200 1400 1600
H1 mm 940 1050 1070 1220 1570 1590 1690
H2 mm 1900 2360 2680 3150 3630 4120 5050
H3 mm 2050 2590 3020 3600 4180 4770 5800
B mm 740 890 1110 1420 1620 1820 2100

Selection example: It is required that the processing flow extract amount I=120kg (with a solid content of 30%) and seed amount II=60kg in each batch. The theoretical finished product amount M=mI+mII=120kgx30%+60kg=96kg can be obtained from I and II, and the working time T=120kg/30kg/h=4h. The boiling amount can be found in the technical parameter column as the standard load range. Therefore, it is more suitable to choose PGL-30 type for completing two batches per shift.

Application Client
Video Highlights
    There are currently no records available.
Animation
Associated works
There are currently no records available.

Inquire

Related articles
  • 2023-04-21 09:59:09

    1. Increase the temperature of hot air entering the towerUnder the condition of constant outlet temperature, the higher the inlet temperature (also known as inlet temperature) of the hot air, the higher the total heat brought in. The more heat per uni…

  • 2023-04-06 10:00:20

    1. Flash dryer raw material acceleration and drying stageIn the heat transfer medium, particles are at a higher temperature and the air humidity is below 100%. In a short period of time, the surface is heated to the dry material humidity, and the rate…

  • 2023-03-22 10:01:27

    ▲ The flash dryer has multiple feeding devices to choose from, ensuring continuous and stable feeding without any bridging during the process.▲ A dedicated cooling device is installed at the bottom of the flash dryer to prevent material deterioratio…

  • 2023-03-09 10:04:34

    The internal influencing factors of the efficiency of hollow blade dryers.1. Mixing blade qualityWhen the mixing blades in the hollow blade dryer are damaged, it will seriously affect the working efficiency of the hollow blade dryer. Without the mixin…

  • 2023-02-16 10:02:36

    A hot air circulation oven is a device that uses circulating hot air to achieve a drying effect. There are generally five models of hot air circulation ovens. They are single door bicycles, two door two cars, two door four cars, three door six cars, a…

  • 2023-01-04 10:06:07

    The disc dryer is suitable for use in drying projects with high evaporation intensity. On the basis of the basic configuration, a finned heater is added to introduce small flow of hot air into the dryer, absorb the water vapor that escapes from the ma…

Products
Drying equipment Granulation equipment Hybrid Equipment Crushing equipment Screening equipment Heat source equipment Dust removal equipment Other equipment
News
Company News Industry News Technical Research Updates Technical Research Updates Technical Literature
Contact
+86-15851956577
Add: Jiaoxi, Zhenglu Town, Changzhou City,
         Jiangsu Province, China
Copyright © 2023 Changzhou Senmao Machinery Equipment CO., LTD All Rights Reserved Support: Eastnet
Top
  • Telephone
  • +86-15851956577
  • Feedback
  • WhatsApp
  • WhatsApp